42 Heales Street, Dromana
EXCLUSIVE LOCATION - TOWN PLANNING APPROVAL
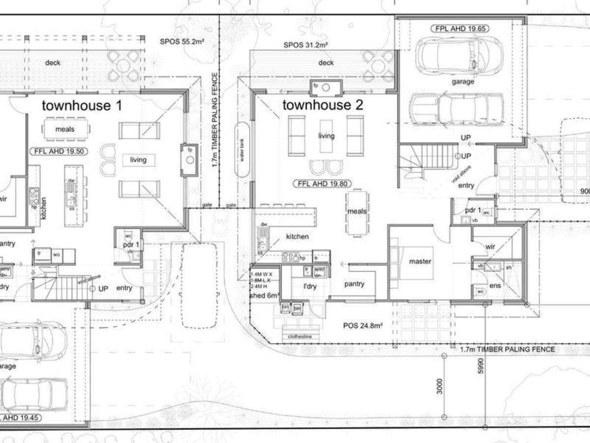
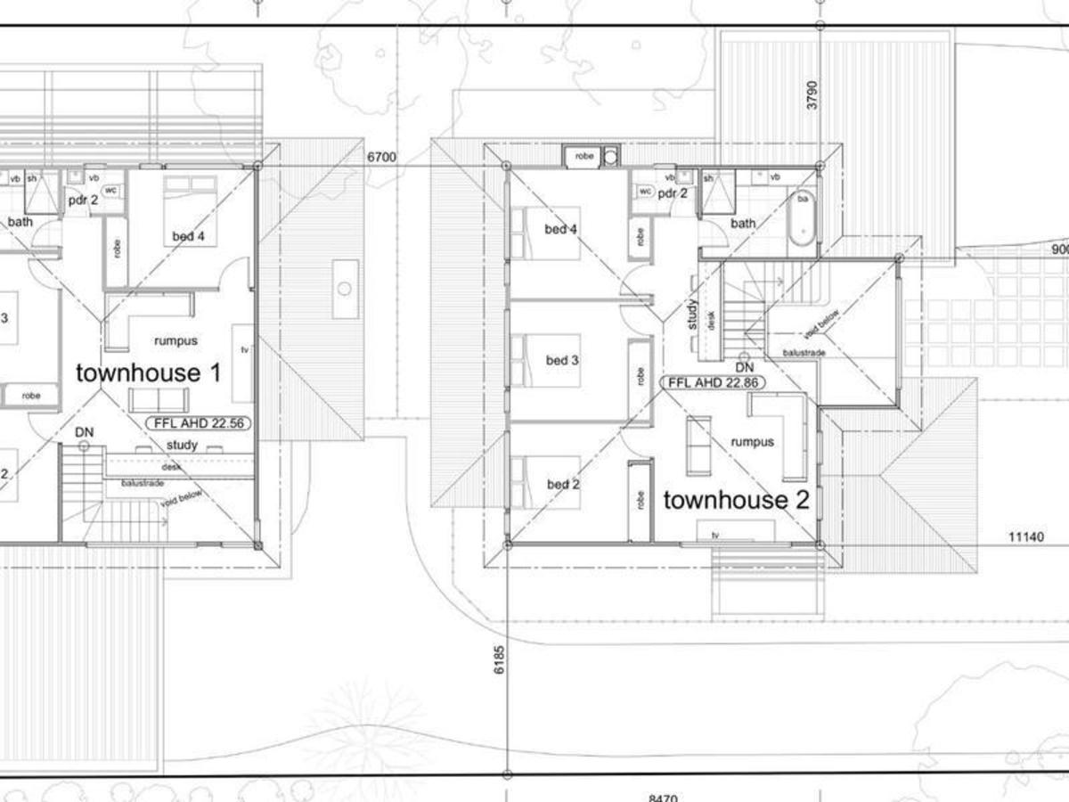
Found in one of Dromana's most exclusive locations just 500m to pristine, white sandy shores stands this charming weatherboard home on a generous 763m2 lot. Complete with Planning Permit, full working drawings and engineering for two quality 2 storey townhouses offering intelligent floor plans incorporating open plan living, outdoor entertaining and ensuited master bedrooms on the lower level. Upstairs delivers three additional bedrooms, a second living zone and family bathroom, all designed around double garages and separate titles. Providing the ideal seaside development with the potential for terrific returns given the stunning location. Or, simply look to retain the classic residence that features high ceilings, two living zones, updated kitchen, three bedrooms, air-conditioning and timber floors, together with garage and secure fencing. Given the terrific performance and convenience of this sensational beach side location you'll struggle to surpass the potential on offer here!

